Wildwood Baptist Church
Wildwood Baptist Church
98 Wildwood Dr , Wildwood, TX 77663
Where a growing community can come together and worship
P O Box 729
Village Mills, TX 77663
wwbsecretary@sbcglobal.net
409.834.2215
Home
Services
S S Classes
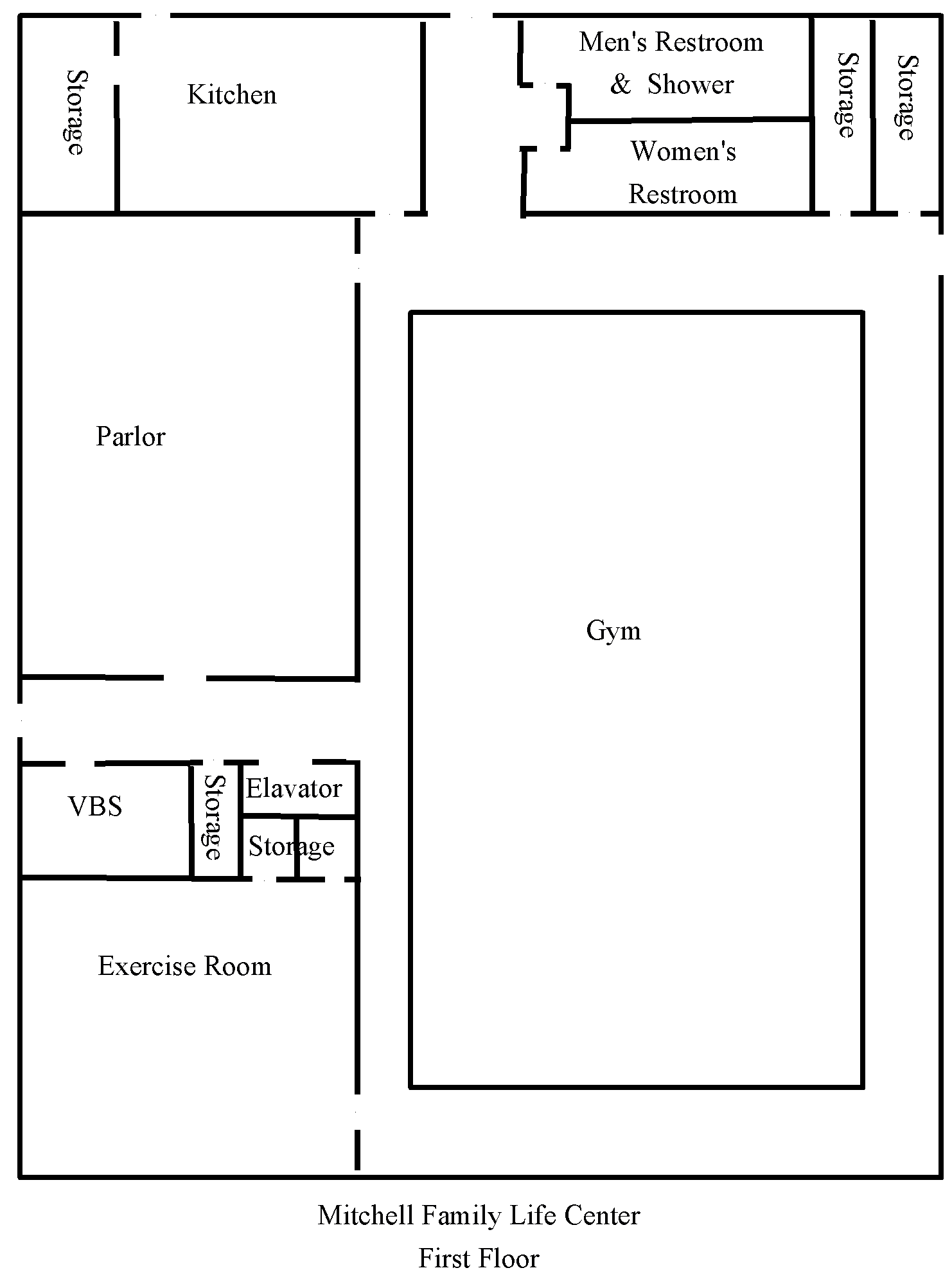
Facilities
Calendar of Events
Ministries
About Us
What We Believe
Church History
Links
Contact Us
Directions
Sunday School Classes and Facilities